For more information regarding the value of a property, please contact us for a free consultation.
Key Details
Property Type Single Family Home
Sub Type Single Family
Listing Status Sold
Purchase Type For Sale
Square Footage 2,198 sqft
Price per Sqft $238
MLS Listing ID 6042257
Style 2 Story
Bedrooms 3
Full Baths 1
Half Baths 1
Three Quarter Bath 1
HOA Fees $40/mo
Year Built 2024
Tax Year 2024
Lot Size 0.469 Acres
Property Sub-Type Single Family
Property Description
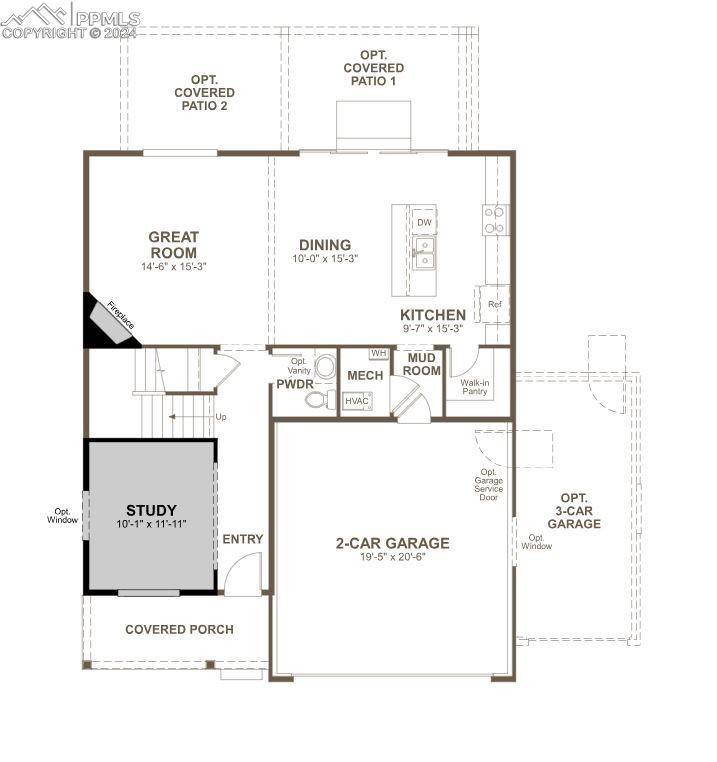
**!!AVAILABLE NOW/MOVE IN READY!!**This Lapis comes ready to impress with two stories of smartly inspired living spaces and designer finishes throughout. The main floor is ideal for entertaining with its open layout. The great room welcomes you to relax near a fireplace and flows into the dining room and well-appointed kitchen which features a quartz center island, walk-in pantry and stainless steel appliances. A study, powder and mud room that is off the garage completes the main floor. Retreat upstairs to find two secondary bedrooms and a shared bath that provide ideal accommodations for family or guests. A cozy loft rests outside the primary suite that boasts a private bath and a spacious walk-in closet.
Location
State CO
County El Paso
Area The Glen At Widefield
Interior
Cooling Central Air
Flooring Carpet, Luxury Vinyl
Fireplaces Number 1
Fireplaces Type Gas, Main Level, One
Laundry Upper
Exterior
Parking Features Attached
Garage Spaces 3.0
Utilities Available See Prop Desc Remarks
Roof Type Composite Shingle
Building
Lot Description See Prop Desc Remarks
Foundation Crawl Space
Builder Name Richmond Am Hm
Water Assoc/Distr
Structure Type Framed on Lot
New Construction Yes
Schools
Middle Schools Janitell
High Schools Mesa Ridge
School District Widefield-3
Others
Special Listing Condition Builder Owned
Read Less Info
Want to know what your home might be worth? Contact us for a FREE valuation!

Our team is ready to help you sell your home for the highest possible price ASAP

Get More Information





